A dark black exterior conceals a bright and calm interior filled with pinewood.

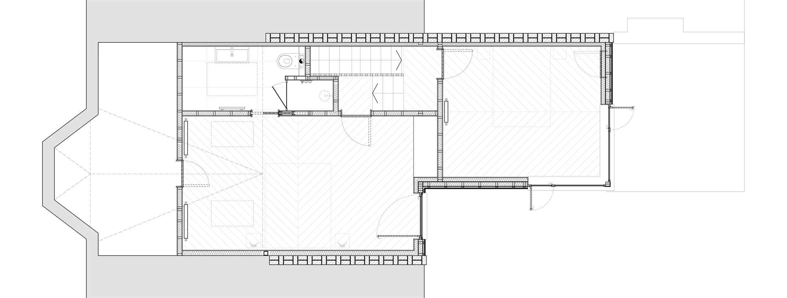
  • The roof extension was commissioned by a couple with a young baby who needed additional space but were keen to keep disruption to family life to an absolute minimum. Rather than undertaking extensive internal reconfiguration, the solution focused on a roof extension that could be delivered efficiently and with minimal disruption. This led to a design and construction approach that was carefully sequenced, allowing the family to remain in the house while the new level was formed independently from above. The brief called for a calm, light-filled retreat above the existing home.

    The roof extension sits atop a Victorian terrace that had already undergone significant alteration over time, freeing the project from strict ideas of preservation and allowing a contemporary response. This allowed the new addition to be unapologetically contemporary, clearly legible as modern addition.

    A deliberate contrast defines the project: a dark, black metal exterior wraps the extension, providing a robust shell in sharp contrast to the inside, where the atmosphere shifts dramatically to one of warmth and softness. Pale, natural timber is used extensively throughout the interior, evoking a Scandinavian sensibility that emphasises light, tactility, and calm. Combined with generous rooflights and windows, the timber surfaces reflect daylight deep into the space, creating an environment that feels both peaceful and uplifting.

    At the heart of the project is a delicate feature pinewood staircase that links the old house and the new extension above. Built in light timber and with a slatted balustrade that extends across two floors, it creates a transition from the existing Victorian fabric to the new level.

Name
Pine House

Client
Private Residential

Project Type
Roof Extension

Scope of Service
Full Service

“I was so impressed with the attention to detail. The outcome of this was such serene spaces.

Part of the brief was to deliver this project within 4 months and with minimal impact on our young family. Almost all of the disruptive construction work was done without anyone passing through our house, with the exception of a few weeks when the feature staircase was installed.

We are beyond delighted with the outcome and finish. Every detail was considered and we now have the most bright and airy modern roof extension on the street.”

- R & K